Кран шаровой Naval фланцевый Ду 15-250 мм на пар по EN (DIN)

| Материал корпуса | Сталь, P235GH (1.0345) |
| Материал шара | Нержавеющая сталь, X5CrNi18-10 (1.4301) |
| Шток |
Нержавеющая сталь, X8CrNiS18-9 (1.4305) |
| Уплотнение штока | Ду15-50, Графит |
| Уплотнение шара |
PTFE+GF |
| Среда | пар |
| Фланцы |
EN 1092-1, PN 10, 16, 25, 40 |
| Длина |
EN 558-1 (DIN 3202) DN 15–200 |
| Тип присоединения | фланцевый |
| Способ управления | ручной, при диаметрах более 200 мм рекомендуется исполнение под редуктор |
| Температура рабочей среды |
DN15–150:-40 °C – +250 °C |
| Диапазон размеров | от Ду 15 до Ду 250 |
| Конструкционные особенности | стандартный проход |
Фланцевый кран шаровой Naval Ду 15-250 мм. на пар производится в соответствии с европейскими стандартами EN и DIN. Кран устанавливается на паровые системы, системы конденсата, системы горячего масла и другие некоррозионно-агрессивные среды.
Преимущества кранов фланцевых Naval на пар:
- небольшой вес;
- цельносварная конструкция;
- длительный cрок эксплуатации;
- не требует обслуживания;
- герметичен в обоих направлениях;
График условий работы

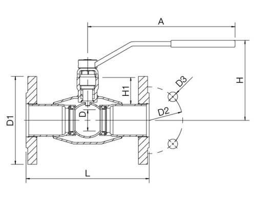
Технические характеристики кранов шаровых фланцевых Naval Ду 15-250 мм на пар

| DN | PN | Артикул | A | D | D1 | D2 | D3 | H | H1 | L | Отверстия | кг |
|---|---|---|---|---|---|---|---|---|---|---|---|---|
| 15 | 40 | 274 503 | 145 | 10 | 95 | 65 | 14 | 117 | 32 | 130 | 4 | 2 |
| 20 | 40 | 274 505 | 145 | 15 | 105 | 75 | 14 | 121 | 33 | 150 | 4 | 2,6 |
| 25 | 40 | 274 506 | 145 | 20 | 115 | 85 | 14 | 139 | 46 | 160 | 4 | 3,4 |
| 32 | 40 | 274 507 | 145 | 25 | 140 | 100 | 18 | 142 | 45 | 180 | 4 | 5 |
| 40 | 40 | 274 508 | 276 | 32 | 150 | 110 | 18 | 143 | 50 | 200 | 4 | 6,5 |
| 50 | 40 | 274 509 | 276 | 40 | 165 | 125 | 18 | 150 | 50 | 230 | 4 | 8,5 |
| 65 | 25 | 274 510 | 278 | 50 | 185 | 145 | 18 | 159 | 62 | 270 | 8 | 11 |
| 80 | 25 | 274 511 | 278 | 65 | 200 | 160 | 18 | 170 | 68 | 280 | 8 | 14 |
| 100 | 25 | 274 512 | 278 | 80 | 235 | 190 | 22 | 218 | 101 | 300 | 8 | 20,2 |
| 125 | 25 | 274 573 | 400 | 100 | 270 | 220 | 26 | 253 | 101 | 325 | 8 | 30 |
| 150 | 25 | 274 574 | 600 | 125 | 300 | 250 | 26 | 272 | 107 | 350 | 8 | 39 |
| 200 | 25 | 274 576 | 870 | 150 | 360 | 310 | 26 | 282 | 92 | 400 | 12 | 65 |
| 250 | 25 | 274 577 | 1200 | 200 | 425 | 370 | 30 | 349 | 108 | 500 | 12 | 112 |
Другие виды кранов шаровых...









