Задвижка чугунная ABRA A40 Ду200-600 Ру10 с обрезиненным клином

| Применение | вентиляция и стационарное кондиционирование, водоснабжение, отопительные установки, теплоснабжение |
| Корпус | Чугун EN-GJS-500-17 |
| Тип присоединения | фланцевый |
| Давление номинальное | 10 бар |
| Макс. температура | 120℃ |
| Управление | штурвал |
| Диаметры | 200-600 |
| Купить "Задвижку чугунную ABRA A40 Ду200-600 Ру10 с обрезиненным клином" можно позвонив нам по телефону в Минске +375 (17) 399-07-10 либо отправив заявку на e-mail: iz@kompensator.by. |
Описание ABRA A40 Ду200-600 Ру10 с обрезиненным клином
Основные области применения таких задвижек - для стальных, чугунных, полиэтиленовых (ПЭ, ПНД) и пр. трубопроводов, транспортирующих воду, нейтральные среды. Конструкция задвижки позволяет использовать её в системах канализации. Также данную конструкцию можно использовать на другие нейтральные жидкости. Задвижки чугунные с обрезиненным клином ABRA обладают отличной химической устойчивостью к:
-
воде, в том числе воде ХВС и ГВС, (систем холодного, в том числе хозяйственно-питьевого, и горячего водоснабжения), морской воде, оборотной воде тепловых сетей, деминерализованной, дистиллированной, газированной воде и т.п.
-
стандартным теплоносителям тепловых сетей (систем отопления) на основе воды
-
стандартным антифризам на основе этиленгликоля и пропиленгликоля и нек.др.
-
техническому воздуху и т.д.
-
Задвижки чугунные ABRA, по строительной длине и присоединительным размерам фланцев взаимозаменяемы с МЗВ, МЗВГ, 30ч39р, хавле задвижки. проходят двойной контроль качества - после гидроиспытаний дополнительно испытываются воздухом
-
Малое гидравлическое сопротивление задвижек обеспечивает великолепные гидравлические характеристики.
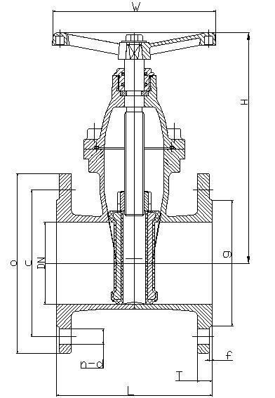
Чертеж габаритный задвижки чугунные клиновой с обрезиненным клином и невыдвижным штоком ABRA A40-10:

Габаритные размеры, рабочие давления и температуры, крутящие моменты, вес и Kv (таблица) задвижки клиновой с обрезиненным клином и невыдвижным штоком ABRA A40-10 Ду 200-600 Ру 10 фланцевой. Присоединение фланец/фланец . Размеры в мм.
Покрытие поверхности (окраска) порошковое эпоксидное электростатическое с предварительным нагревом и выдержкой до полной полимеризации.
| Ду / DN | 200 (8") |
250 (10") |
300 (12") |
350 (14") |
400 (16") |
450 (18") |
500 (20") |
600 (24") |
| Ру / PN |
10 бар (1,0 МПа)
|
|||||||
| Диапазон рабочих температур, °C |
Максимально допустимая температура 120 °C,
Минимальная температура окружающей среды -20 °C, Рабочая температура от -10 до +95 °C |
|||||||
| Код товара | ABRA A40- 10- 200 |
ABRA A40- 10- 250 |
ABRA A40- 10- 300 |
ABRA A40- 10- 350 |
ABRA A40- 10- G400 |
ABRA A40- 10- 450 |
ABRA A40- 10- 500 |
ABRA A40- 10- 600 |
| L - строительная длина DIN3202 F4 = EN558-1 GR14, мм | 230 | 250 | 270 | 290 | 310 | 330 | 350 | 390 |
| Н - строительная высота от оси трубы, мм | 490 | 585 | 685 | 733 | 810 | 889 | 968 | 1128 |
| Н1 - габаритная высота | 660 | 788 | 915 | 993 | 1100 | 1209 | 1326 | 1548 |
| О - внешний диаметр присоединительного фланца, мм | 340 | 395 | 445 | 505 | 565 | 615 | 670 | 780 |
| С - межосевое расстояние присоединительных отверстий, мм | 295 | 350 | 400 | 460 | 515 | 565 | 620 | 725 |
| I - толщина фланцев, мм | 20 | 22 | 24,5 | 26,5 | 28 | 30 | 31,5 | 36 |
| d - диаметр присоединительных отверстий, мм | 23 | 23 | 23 | 23 | 28 | 28 | 28 | 31 |
| n - КСО - количество сквозных отверстий в 1 фланце | 8 | 12 | 12 | 16 | 16 | 20 | 20 | 20 |
| W - диаметр штурвала, мм | 280 | 320 | 360 | 450 | 450 | 600 | 600 | 600 |
| g - внешний диаметр присоединительного выступа, мм | 266 | 319 | 370 | 429 | 480 | 530 | 582 | 682 |
| f - высота присоединительного выступа, мм | 3 | 4 | 5 | |||||
| Вес, кг | 55 | 91 | 124 | 175 | 245 | 315 | 380 | 600 |
| Крутящий момент, Н*м | 160 | 210 | 280 | 300 | 350 | 400 | 450 | 550 |
| Кv, м3/час | 6 000 | 10 000 | 16 000 | 18 000 | 33 000 | 39000 | 53000 | 85000 |
Спецификация деталей и материалов задвижки клиновой с обрезиненным клином и невыдвижным штоком ABRA A40-10 Ду 040-600 Ру 10 фланцевой :
Покрытие поверхности (окраска) порошковое эпоксидное электростатическое с предварительным нагревом и выдержкой до полной полимеризации.
| Наименование | Материал |
| Корпус | Чугун DIN GGG50 = QT450-10 |
| Покрытие клина (запорного диска) | EPDM (Этиленпропиленовый вулканизированный каучук = резина) |
| Клин (запорный диск) | Чугун DIN GGG50 (описан выше в таблице) |
| Ведущая гайка клина | Латунь HMn-58-2-2 примерно как ЛМц58-2 |
| Шток | Нержавеющая сталь 2Cr13 = ГОСТ 20X13 = ASTM 420 |
| Крышка | Чугун DIN GGG50 (описан выше в таблице) |
| Прижимная гайка сальника | Латунь HMn-58-2-2 примерно как ЛМц58-2 (описана выше в таблице) |
| Штурвал | Чугун DIN GGG50 (описан выше в таблице) |
| Болт крепления штурвала | Нержавеющая сталь 1Cr13 = ГОСТ12X13 = ASTM 410 |
| Кольцо уплотнительное круглого сечения | NBR (Бутадиеннитрильный вулканизированный каучук = резина) |
| Стопорное кольцо | Латунь HMn-58-2-2 примерно как ЛМц58-2 - описана выше в таблице |
| Крепежные болты крышки корпуса | Все метизы с ТДЦ покрытием + 100% заливка отверстий парафином для защиты от воздействия окружающей среды ( Конструкционная качественная углеродистая сталь GB700-88 Q235 с термодиффузионным цинкованием - по механическим свойствам, как , ГОСТ Ст.20, DIN St.37, UNS K 02502, AISI 1020, A-216 WCB, GB A3 |
| Прокладка крышки корпуса | EPDM (Этиленпропиленовый вулканизированный каучук = резина) - описан выше в таблице |









